A régi időkben ( 40 évvel ezelőtt ), amikor fa ablakokat gyártottak és még nem álltak rendelkezésre korszerű gépek, gyártósorok, már akkor megtalálható volt a fa ablak típusok között, pl: a hagyományos Pallótokos, Tessauer, Sofa, Dufa vagy a Kapcsolt gerébtokos ablakok.
Ezek az ablakok még ma is fellelhetők a régebbi épületekben, amelyek felújításra vagy cserére várnak, míg a technológia fejlődésével napjainkban új energiatakarékos ablak profilok is megjelentek, amelyek még jobban kihasználják a fa természetes szigetelő képességét és így tovább növelik az otthonok energetikai hatékonyságát.
A fa ablakok és azok különböző típusai széles körben kedveltek a természetes anyaguk, megjelenésük és sokoldalúságuk miatt. A fából készült ablakok nemcsak esztétikai értéket adnak otthonunknak, hanem kiváló hőszigetelési és hangszigetelési tulajdonságokkal is rendelkeznek.
A fa természetes szigetelőanyagként működik, ami segít fenntartani az otthonunk kellemes hőmérsékletét, télen melegen, nyáron pedig hűvösen tartva azt. Ez hozzájárul az energiaköltségek csökkentéséhez és az ökológiai lábnyom minimalizálásához.
A fa ablakok esztétikai vonzereje vitathatatlan. Legyen szó hagyományos, rusztikus vagy modern designról, a fa természetes textúrája és színe tökéletesen illeszkedik bármilyen épülethez. A fa ablakokat festhetjük és pácolhatjuk, így még inkább a saját ízlésünkre tudjuk alakítani. Felületkezelésükre a vizes bázisú alapozókat ajánljuk, ilyenek lehetnek pl: a Sayerlack és a Milesi termékei.
Ha megfelelően karbantartjuk, a fa ablakok élettartama, akár 50 évre is kitolható. Az ablakok felületének rendszeres, 3-5 évenkénti lazúrozása és a vasalatok időszakos olajozása elengedhetetlen a hosszú élettartam biztosításához.
A pallótokos fa ablakok régi építési technológiát képviselnek, amelyek napjainkban már kevésbé használatosak, de a műemlék jellegű épületekben még gyakran előfordulnak. Ezek a kétrétegű ablakszerkezetek jellemzően a külső falsík mentén kialakított kávára épülnek.
A tokszerkezet gyalult pallókból készült keretet alkot, amely a káva méretéhez igazodik. Az ablak külső és belső szárnya külön külön nyílik: a külső kifelé, a belső befelé, biztosítva ezzel a szükséges szellőzést és fényáteresztést.
A pallótokos ablakoknál a külső szárnyak általában rosszabbul állják az időjárás viszontagságait a kifelé nyílás miatt, mivel ezeket közvetlenül a fal síkjára építik.
Az ilyen típusú ablakok, amelyek gyakran „kazettás”, azaz apróüveges duplaablakok, rosszul szigetelnek és még a csapadékot is átengedik, ezért az utólagos szigetelés különösen fontos lehet.
Az időjárás viszontagságai elleni védelem érdekében gyakran szükség van a külső szárnyakon vízvezető lécek alkalmazására.
A fa ablakok felújítása során gyakran választják a teljes ablakcsere helyett az eredeti szerkezetek megőrzését, különösen műemléki védettségű épületek esetén, ahol a történelmi hitelesség megőrzése kiemelt fontosságú. A pallótokos ablakok esetén ez különösen fontos, mivel az eredeti megjelenés és működés fenntartása mellett modern szigetelési megoldásokat is integrálhatnak, hogy javítsák az ablakok hőszigetelési tulajdonságait.
A Tessauer típusú ablakok még ma is az egyik leggyakrabban felújítandó nyílászárók közé tartoznak, amelyek elsősorban a 20. század vége feléfele nyertek nagy népszerűséget Magyarországon. Jellemzően az 1970-es és 1980-as években, a panelépítési hullám során kezdték el őket alkalmazni. Szinte minden panellakásba ilyet építettek be.
Ezek az ablakok két szárnyúak voltak, ahol a külső szárnyak kifelé, a belső szárnyak befelé nyíltak, ezzel biztosítva a jobb szellőzést és fénybeáramlást. A külső szárnyak kifelé nyílása miatt azonban kevésbé voltak ellenállók az időjárási viszontagságokkal szemben, ami gyakran szükségessé tette a felújításukat.
A Tessauer ablakok kialakítása úgy történt, hogy a külső és a belső szárnyat zsanérral és csavarral rögzítették egymáshoz, ami megkönnyítette az ablakok karbantartását, de egyben körülményessé is tette a tisztításukat, mivel a két üveg közé került koszt csak az egyesített szárnyak szétszerelésével lehetett eltávolítani.
Kialakításuk nagy előnye az volt, hogy a két szárny közötti légréteg megakadályozta a párásodást.
A Tessauer ablakokat gyakran modern felújítással, azaz a svéd nút bemarásos technikával szigetelik utólag, hogy javítsák a hő és hangszigetelési tulajdonságaikat. Ennek során a régi üvegeket korszerű hőszigetelő üvegre cserélik és a szárnyak között lévő szigetelő csíkok pedig minimalizálják a huzatot és a por bejutását.
Történelmi jelentőségük miatt gyakran megmaradnak azokban az épületekben, ahol fontos a stílus megőrzése. Azonban a felújítás költségei magasak lehetnek és nem mindig éri meg anyagilag a munkálatokba kezdeni, különösen ha a fa szerkezet már túlságosan károsodott.
A felújítás előtt érdemes alaposan megfontolni az alternatívákat, beleértve az ablakok teljes cseréjét is, ha a régi ablakok állapota már nem teszi lehetővé hatékony felújításukat.
Az 1970-es évek jelentős változásokat hoztak a fa ablakok gyártási technológiájában, amikor is elkezdték alkalmazni a hőszigetelő üvegeket és a szigetelő gumitömítéseket.
Ezek a fejlesztések jelentős minőségi javulást hoztak, különösen a középosztály számára, mert elérhetővé váltak a Sofa ablakok és Dufa ablakok.
A hőszigetelő üveges és szigetelő gumitömítéssel ellátott fa ablakok nagyobb hőszigetelést és tartósságot kínáltak, ezért jóval drágábbak is voltak.
Ennek ellenére, az energiahatékonyság és a hosszú távú megtakarítások szempontjából ezek az ablakok különösen vonzóvá váltak azon rétegek számára, akik képesek voltak befektetni a kezdeti magasabb költségekbe.
A régi polgári házakban és a tégla épületekben egyaránt gyakoriak voltak a gerébtokos fa ablakok, amelyek jellemzően egysoros szerkezetűek, vagyis egy réteg üveggel készültek.
Az ablakok befelé nyíló kialakításúak voltak és körülbelül 2 milliméter vastagságú síküveggel rendelkeztek, melyet üvegszegekkel vagy gittel rögzítettek az ablak szárnyakhoz.
A régi gerébtokos ablakok utólagos szigeteléssel vagy javítással jelentősen javíthatók voltak funkcionális szempontból.
Az utólagos beavatkozások általában magukban foglalták az ablakszárny alsó, vízszintes részéhez csatlakozó fa vízvető perem elemeket, amelyek védték az ablak alsó tokrészét és segítettek az üvegfelületen lefolyó vizet elvezetni.
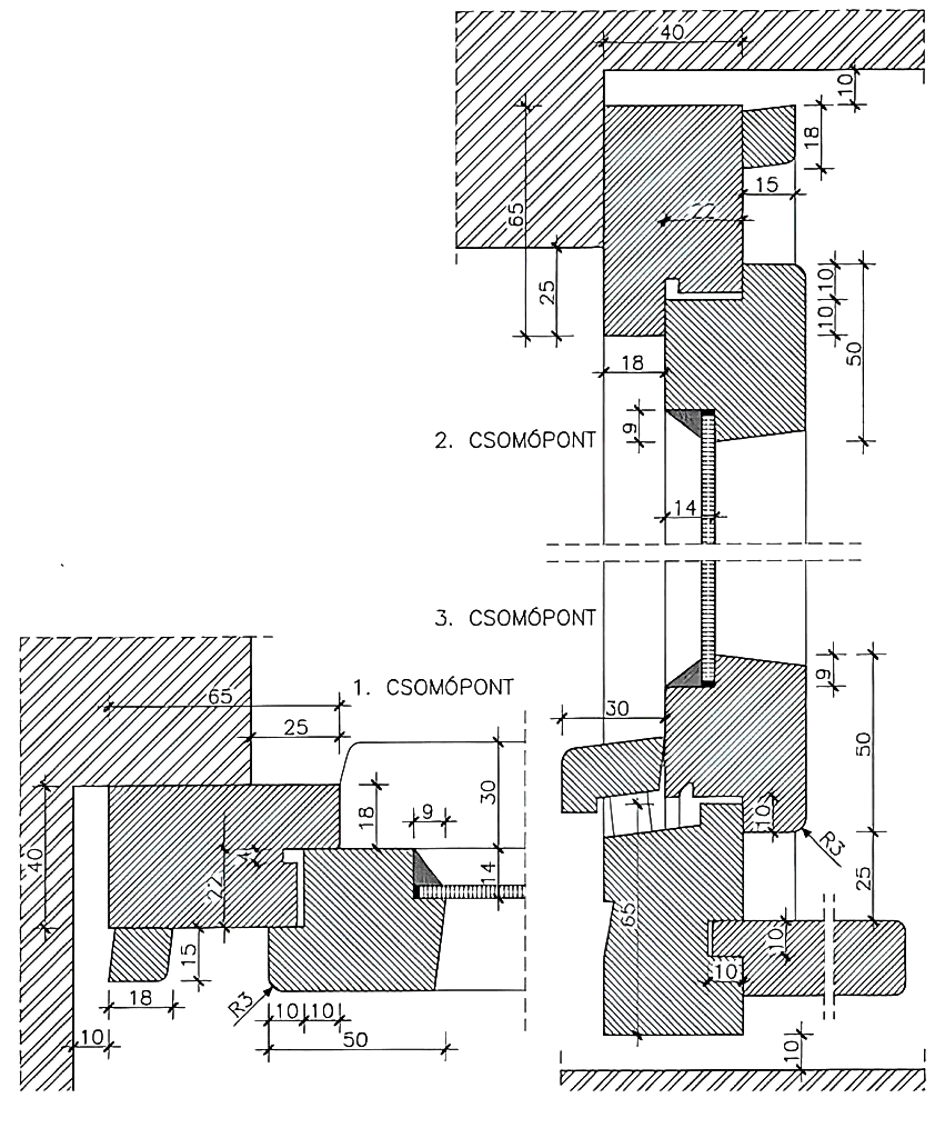
Az alábbi képen a régi gerébtokos fa ablak metszete látható, amely szemléletesen mutatja be szerkezetét és kialakítását.
A kapcsolt gerébtokos ablakok jellegzetességei és fejlődése az idők során jelentős változásokat mutatnak. Ez a fa ablaktípus 1840 óta, egészen napjainkig még mindig gyakran előfordul, különösen a kádár kocka családi házakban és a régi építésű tégla lakásokban találkozhatunk velük.
A kapcsolt gerébtokos ablak felett helyezkedik el a redőnytok, ahol a hagyományos fa redőnyök mellett a mai modern maxi redőnyök is elhelyezhetők a redőny dobozba és kiváló megoldást jelentenek a napvédelemre és a biztonságra is.
Az ablakok kettő vagy három szárnyúak, a külső és belső szárnyak különböző méretekben készültek és mindegyik ablakszárny befelé nyílik.
A külső és belső ablakszárnyak közötti távolság, általában 10-15 cm, jelentősen hozzájárult az ablakok hőszigetelési értékének javításához. Bár ez az elrendezés javította a hőszigetelést, az ilyen típusú ablakok hőszigetelési értékei még mindig elmaradnak a modern, új technológiával készült ablakokétól.
A szárnyak rögzítését a rúdzárak általában három ponton biztosítják, míg a szárnyak két-három pánt segítségével csatlakoznak a tokhoz. Ez a szerkezeti megoldás növeli az ablakok biztonságát és stabilitását.
A külső szárnyak mérete kisebb volt, hogy illeszkedjenek a fa tok kialakításához és „lépcsőzetes vízorros” kialakítással védték a fa szerkezetet, ezzel megakadályozva a víz behatolását és a károsodást.
Az ablakszárnyak vastagsága általában 40-42 mm között mozgott, és jellemzően 2-3 mm vastag üvegezéssel készültek.
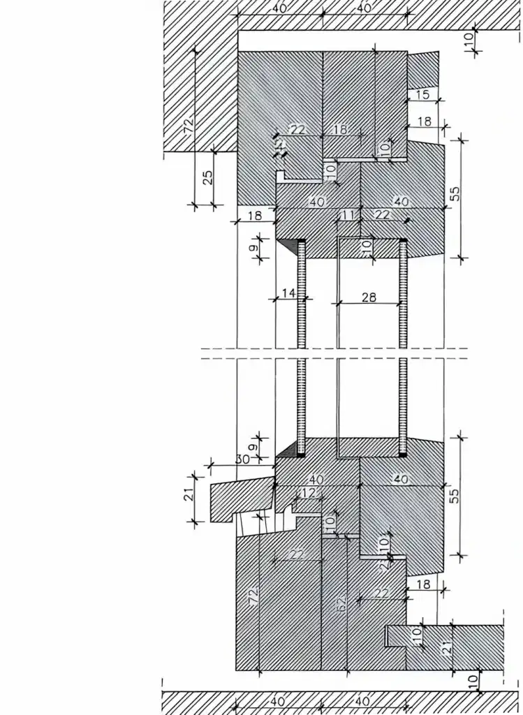
Az alábbi képen a kapcsolt gerébtokos ablak rajz segítségével könnyen megérthető a régi ablakok kialakítása és működése.
Ha gerébtokos ablakok felújítására kerül sor, gyakran szükségessé válik a régi üvegek cseréje, a vasalatok pótlása és az összekötő csavarok cseréje.
A 2000-es évek elején sok cég alkalmazta a gumiszigetelés bemarását vagy a szivacscsík felragasztását, amelyek jelentősen hozzájárultak a régi dupla ablakok hőszigetelési értékeinek javításához.
Bár ez napjainkban már nem igazán jó megoldás, legfőképpen hőtechnikai szempontból.
A kapcsolt gerébtokos ablakok a múlt században kifejlesztett technológiai megoldások egyike. Jelenleg is sok Magyarországi családi házakban, régi tégla épületekben fordulnak elő.
Az ablakgyártás technológiája 2024-re jelentős fejlődésen ment keresztül, ami lehetővé teszi, hogy automatizált gyártósorok segítségével a fa ablakokat kiváló minőségben és tartós kivitelben állíthassák elő. Ennek következtében a régi ablakok cseréje nemcsak hogy javíthatja ingatlanunk energetikai hatékonyságát, hanem otthonunk esztétikáját is emelheti egy magasabb szintre.
Csatlakozzon Ön is elégedett ügyfeleink közé!
KIVÁLÓ 198 vélemény alapján Gábor Szűcs2025-08-31 Nagyon elégedettek vagyunk a Megbízható Ablakkal! A műanyag redőnyök beszerelése gyorsan és pontosan zajlott, minden méret tökéletesen stimmelt. A redőny szerelés során látszott, hogy profi, tapasztalt szakemberekkel van dolgunk. Külön köszönjük a redőnykapu készítését és szerelését, ami valóban megkönnyítette a mindennapjainkat. A régi, útra nyíló garázsajtó helyett kerestem elsősorban új megoldást, így akadtam Gergőékre. A nyílás mérete sem szabványos, ez még inkább egyedivé tette a keresést. A redőnytokos garázskapu beépítésével ez nem jelentett problémát. Az első kapcsolatfelvételtől a munka végéig minden gördülékenyen ment. Külön kiemelném, hogy nagyon tetszett a folyamatos kommunikáció, ami manapság nem nagyon jellemző. Mindenkinek ajánlom Gergőéket és csapatát, aki megbízható szakembereket keres redőny garázskapu gyártásra! Norbert Juhász2025-08-15 Több cégtől is kértem ajánlatot, de végül a Megbízható Ablak ajánlata volt a legkorrektebb árban, ráadásul a rengeteg pozitív visszajelzés is megerősítette a döntésemet. Sok jót olvastam a Gealan műanyag ablakokról, éppen ezért az S8000-es profilt választottam. Az ablakokra műanyag redőnyöket és alumínium keretes peremes szúnyoghálókat is rendeltem. ( Gergő javasolta, hogy ha a redőny és a szúnyogháló külön van, az jobb, mert így a poloskák nem tudnak átmászni a szúnyoghálón – szemben a redőnybe épített változattal.) Az ablakcsere és a redőnyök szerelése egész nap elhúzódott Nagyharsányi családi házunknál, de a munkát precízen elvégezték és minden pontosan úgy lett, ahogy korábban megbeszéltük. Az új nyílászárók szépek, jól szigetelnek, a redőnyök pedig hibátlanul működnek. Fiatalos, lendületes és jó humorú csapat – csak ajánlani tudom őket! Károly Pfaff2025-08-12 Nálunk Hőgyészen is megtörtént a régi redőnyök cseréje, amik már alig működtek. Nagyon örültünk, hogy nem kellett mindent kibontani, hiszen a műanyag redőnyöket a régi tokba szerelték vissza. A felméréstől számítva mindössze 1 hét alatt elkészült a redőnyök gyártása és a beszerelése is! Gergőék pontosan érkeztek, gyorsan és tisztán dolgoztak, minden kérdésünkre készséggel válaszoltak. Amit ígértek, azt be is tartották! Ritka manapság ilyen megbízható, korrekt és igényes munka – bátran ajánlom mindenkinek a Megbízható Ablakot! Tiborné Zöld2025-08-09 Gergő ès csapatával nagyon meg voltunk elégedve. A megbeszèlt időpontra megèrkeztek Zalaegerszegi otthonunkba ès gyorsan, pontosan elvègeztèk az ablakok cseréjét. A rehau 70 műanyag ablakok nagyon szèpek ès sokkal könnyebb kezelni őket, mint a régi fa ablakokat. A műanyag redőnyök is szépen mutatnak. Udvariasak ès illedelmesen voltak. Köszönjük szépen. Imre Grecsó2025-08-05 Megbízható ablakost kerestünk bejárati ajtó, ablakok cseréjéhez és nagyon örülünk, hogy Gergőéket választottuk! Az elejétől a végéig minden gördülékenyen ment. A megrendelésünket később kétszer is módosítottuk, de ezt teljes rugalmassággal kezelték — semmi nem jelentett problémát, mindenre nyitottak és megoldásorientáltak voltak. Ez számunkra hatalmas pozitívum volt! Az ablakcsere során Gealan S8000 német minőségű ablakokat építettek be, amik szuperül néznek ki és azóta sokkal csendesebb és melegebb lett a lakásunk. Pluszban elektromos alumínium redőnyöket is felszereltek, amik remekül árnyékolnak. Segítőkészek voltak, pontosan érkeztek és minden kérdésünkre türelmesen válaszoltak. Látszik, hogy nem ma kezdték a szakmát. Szívből ajánlom őket mindenkinek, aki Dunakeszin ablak cserében vagy redőny felszerelésben gondolkodik. Nagyon korrekt, precíz csapat, akikre tényleg lehet számítani. Gábor Tóth2025-08-03 Tahitótfalun építkezünk és a fa ablakok kiválasztása során kiemelten fontos volt számunkra a minőség és a megbízhatóság. Gergő már az első telefonhívástól kezdve segítőkész volt és türelmesen végighallgatott minket – minden kérdésünkre érthető, részletes választ kaptunk, ami kezdő építtetőként rengeteget segített a döntéseinkben. A választásunk végül a 68-as profilú, 3 rétegű hőszigetelt üvegezésű fa ablakokra esett, amelyeket minőségben és árban is teljesen elfogadhatónak tartottunk. A megrendelés gördülékenyen ment és a legnagyobb meglepetésünkre a vállalási határidő előtt elkészült minden. A fa ablakok beépítése precízen, gyorsan és tisztán zajlott – látszik, hogy összeszokott, tapasztalt szakemberekkel dolgoznak. A végeredmény minden elvárásunkat felülmúlta, a Remmers felületkezelésű fa nyílászárók pedig valóban kifogástalanok. Örülök, hogy a Megbízható Ablakot választottuk és ha fa ablakról lesz szó legközelebb, biztosan hozzájuk fordulunk. János Hegedűs2025-07-31 Gergőék munkájával meg voltam elégedve. Pontosan érkeztek a megbeszélt helyszíni felmérésre és tartották a teljesítési határidőt. A megbeszélt napon elvégezték a munkát, nem volt csúszás vagy határidő tolódás. Mindenről tájékoztattak, és minden lényeges kérdés írásba lett foglalva. Teljes csere lett végrehajtva mindhárom ablaknál, kiegészítve redőnyökkel. Teljesen más a lakás hangulata a pontosan megtervezett ablakok beépítése után. Merem ajánlani őket, megbízható és figyelmes munkavégzést teljesítettek, a megbeszélt árösszegben maradva. Dea Dr. Orosz2025-07-21 Törökbálinton végezték nálunk az ablakcserét 3 évvel ezelőtt, amikor 92-es fa ablakokat és erkélyajtót választottunk, 3 rétegű hőszigetelt üveggel. A felületkezelés gyönyörű és tartós, látszik, hogy prémium minőséget kaptunk. Az új fa ablakok nemcsak esztétikusak, hanem remek hő- és zajszigetelést biztosítanak, érezhetően komfortosabb lett a lakás. A Megbízható Ablak csapata profi módon, pontos határidővel dolgozott, minden kérdésünkre segítőkészen válaszoltak. Elégedettek voltunk, ezért már ismerőseinknek is ajánlottuk őket, hiszen ritka az ilyen megbízható és igényes munka. Csilla Zubekné2025-07-17 Siófokon kerestem megbízható szakembert a régi, elkorhadt tetőablakaim cseréjéhez. Utólag nagyon örülök, hogy végül Gergőéket választottam, hiszen a helyi ablakosok még a mai napig sem válaszoltak megkereséseimre. A Megbízható Ablak profi hozzáállással, pontos felméréssel és szakszerű kivitelezéssel végezte a munkát, ráadásul minőségi Rooflite tetőablakokat építettek be. Mindenkinek bátran ajánlom őket, aki Siófokon vagy környékén keres ablakos céget tetőablak cserére vagy beszerelésre! Mark Rabavolgyi2025-07-16 Maximálisan elégedett vagyok a szolgáltatással! Felhívtam Gergőt és már aznap ki is számolta az ajánlatot. Többszöri finomítás után megrendeltem a műanyag redőnyöket és a szerződés kötéstől számítva a 3. napon vállalták a redőny szerelést Magyarhertelenden – ami manapság ritkaság! Egy kiváló redőnyös csapatot ismertem meg, akik precízen, gyorsan és tisztán dolgoznak. Annyira meggyőztek a minőségi munkájukkal, hogy rendeltem még alumínium keretes, nyíló szúnyogháló ajtókat is. Szívből ajánlom a Megbízható Ablakot mindazoknak, akik minőségi és pontos munkát szeretnének!

Kérjen ingyenes árajánlatot!
"*" a kötelező mezőket jelöli
A Megbízható Ablak büszke arra, hogy kiváló beszállítóink és partnereink által szállított prémium minőségű alapanyagokkal tud dolgozni, így garantálva ügyfeleink számára a legmagasabb színvonalú nyílászárókat és árnyékolókat.
Olyan neves gyártókkal működünk együtt, mint a GU, Aluplast, Salamander, Roto, Smart Home, Greenteq, Decco és Hoppe, biztosítva ezzel, hogy termékeink mindig a legmagasabb ipari standardoknak megfeleljenek.







